top of page
House Renovation :
30 Timber Ln
Everyone has an imaginary house that they want to live in at least once. To realize that imagination, I have permeated numerous meetings personally. Houses were designed based on only their lifestyles. The existing materials such as a brick wall, the stone floor, and the structure were reused to refinished eco-friendly.
2022~Present
Residential
Manhasset, New York
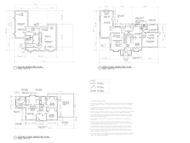
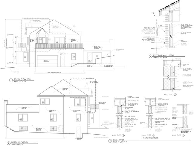
Architect Plan
3D Design-Isometric Plan View
3D Design-Exterior
3D Design-Interior
bottom of page




















